Добро пожаловать на http://vipplan.ru

Випплан Миасс - это тысячи проектов домов в нашем каталоге!

Вы всегда сможете найти для себя проект дома вашей мечты! Даже если этого не случилось, мы готовы в любую минуту предложить проект индивидуального дома.

Забыли пароль?
Вы еще не регистрировались?

Перейдите по ссылке ниже на страницу регистрации.

Регистрация...

Внимание!!!

В проектную документацию могут быть внесены изменения любой сложности, в соответствии в Вашими пожеланиями!

Полезные статьи

Применение ленточных фундаментов

Большинство людей никогда не сталкивались с выбором фундамента, а, столкнувшись, не могут определиться с выбором. Ведущие специалисты в области строительства утверждают, что лучшим типом фундамент - ленточный фундамент. Как показывает статистика, ленточный фундамент очень популярен среди жителей нашей страны. ...

Правильная изоляция подвала

Какой выбрать материал, как правильно выполнить работу, перед началом изоляции подвала какие подготовительно-строительные работы следует провести и какой момент играет правильное выполнение работ. Последние несколько лет придали много хлопот жильцам домов, увлажнив им подвалы. Этот период показал насколько важно обеспечить надлежащую защиту зданий от грунтовых вод и воздействия влаги....

Проекты домов и коттеджей > Каталог проектов домов > Проект двухэтажного дома с гаражом Vg1030

Проект двухэтажного дома с гаражом Vg1030

Проект двухэтажного дома с гаражом
Зарегистрируйтесь

Проект № Vg1030


Техническое описание
Общая площадь: 261.69 м2
Жилая площадь: 124.24 м2
Высота здания: 9.72 м
Размеры дома: 18.24м×13.14м
Кол-во комнат: 6
Цокольный этаж: нет
Гараж: нет
Мансарда: нет

Kонструкция
Фундамент: Монолитная плита
Перекрытия: Деревянные балки
Материал стен: Газобетон

Архитектурный раздел
Конструктивный раздел
АР+КР - 72 000 (Со скидкой 20%)
Проект индивидуального двухэтажного жилого дома с размерами здания 18,24 х 13,14 м. Наружная отделка здания – фасадная штукатурка. Фундамент – монолитная плита (под всей площадью дома). Наружные стены – газобетонные блоки с утеплением экструдированным пенополистиролом и отделкой штукатуркой. Внутренние стены - газобетонные блоки. Перегородки – рядовой кирпич. Пол первого этажа- пол по монолитной плите. Межэтажное перекрытие – ж/б плиты.Чердачное перекрытие - деревянные балки. Крыша металлочерепица, гибкая черепица Кровля – многоскатая. Окна - металлопластиковые, выполненные по индивидуальному заказу.
Генплан застройки участка / Паспорт проекта 7000 руб / 10000 руб
Инженерный раздел (полный) 131000 руб
Смета на строительство 65500 руб
Теплотехнический расчет материалов стен Бесплатно
Стоимость проекта со незначительнми изменениями 83450 руб
Стоимость проекта со средними изменениями* 103100 руб
Стоимость проекта со значительными изменениями** 108300 руб

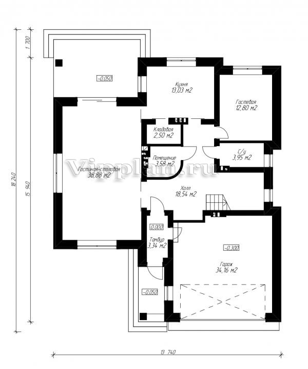
План первого этажа


Тамбур — 3,34 м2
Холл — 18,54 м2
Помещение — 3,58 м2
Кладовая — 2,50 м2
Кухня — 13,03 м2
Гостевая — 12,80 м2
С/у — 3,95 м2
Гостиная — 38,88 м2
Гараж — 34,16 м2

Проект двухэтажного дома с гаражом

Проект двухэтажного дома с гаражом

План второго этажа


Холл — 19,16 м2
Постирочная — 5,61 м2
Спальня — 24,05 м2
Гардероб — 3,88 м2
Гардероб — 3,89 м2
С/у — 6,95 м2
Гардероб — 4,12 м2
Спальня — 15,84 м2
Гардероб — 3,09 м2
Спальня — 15,55 м2
Гардероб — 3,09 м2
С/у — 8,55 м2
Спальня — 17,12 м2
Проект двухэтажного дома с гаражом Проект двухэтажного дома с гаражом Проект двухэтажного дома с гаражом Проект двухэтажного дома с гаражом

Модификации проектов

Внесение изменений и привязка к участку строительства

В любой из проектов от компании VIPplan - Миасс по вашему желанию могут быть внесены изменения в материалы стен, материалы наружной отделки дома, а также будет произведена адаптация проекта под конкретный регион строительства (с учетом грунтов региона, геологических особенностей вашего участка и местных климатических условий) - БЕСПЛАТНО !!! (кроме проектов со скидкой и проектов наших партнеров).

Любой из проектов, размещенных на сайте miass.vipplan.ru мы можем выполнить из требуемых вам строительных материалов: ячеистый бетон (газобетон, пеноблок), керамоблок, кирпич, шлакоблок, бетонный блок, дерево (брус, клееный брус), каркасная технология (деревянный каркас, металлокаркас (ЛСТК)).

Фасад дома и его наружную отделку так же возможно выполнить с применением различных облицовочных материалов: структурной штукатурки, (с утеплителем и без), сайдингом (пластиковый или металлосайдинг), фиброплитами, кирпича.

 
6 Избранные
проекты

Доставка проектов по России: Москва (Московская область), Санкт-Петербург (Ленинградская область), Краснодар, Ростов-на-Дону, Ставрополь, Сочи, Волгоград, Новосибирск, Белгород, Брянск, Воронеж, Саратов, Хабаровск, Астрахань, Нальчик, Владикавказ, Екатеринбург, Тюмень, Самара, Нижний Новгород, Казань, Пермь, Уфа, Челябинск, Красноярск, Ханты-Мансийск, Иркутск, Курган, Оренбург, Омск, Томск, Барнаул, Новокузнецк, Кемерово, Абакан, Чита, Якутск, Южно-Сахалинск, Петропавловск-Камчатский и страны ближнего зарубежья: Белоруссия, Украина, Казахстан